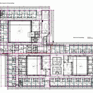
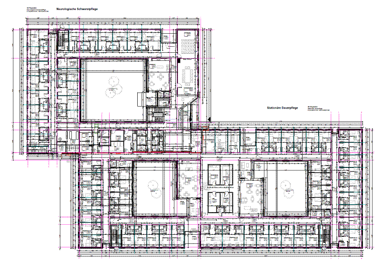
Friedehorst Haus 21

Neubau Pflegeheim Haus 21 Friedehorst Bremen

Bauherr:
Stiftung Friedehorst, Bremen
Planung:
Haslob Kruse + Partner Architekten BDA, Bremen
Baujahr:
2007 / 2008
Leistungsumfang:
Tragwerksplanung LPH 1 bis 6
Konstruktion:
Mauerwerksbau mit Stahlbetondecken, Flachgründung
Bauteil 1: Länge x Breite / 50 m x 36 m – 3 Geschosse
Bauteil 2: Länge x Breite / 82 m x 35 m – 2 Geschosse